ANDREW PILKINGTON ARCHITECTS & DESIGNERS
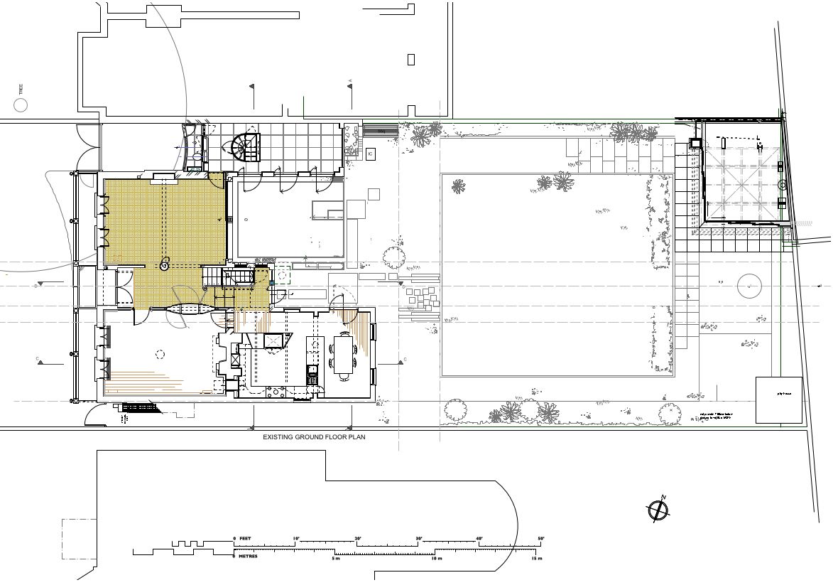
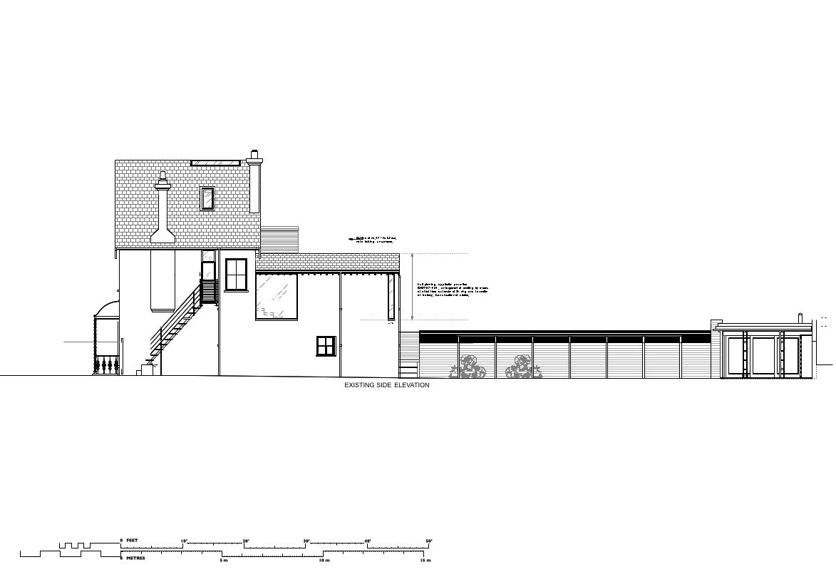
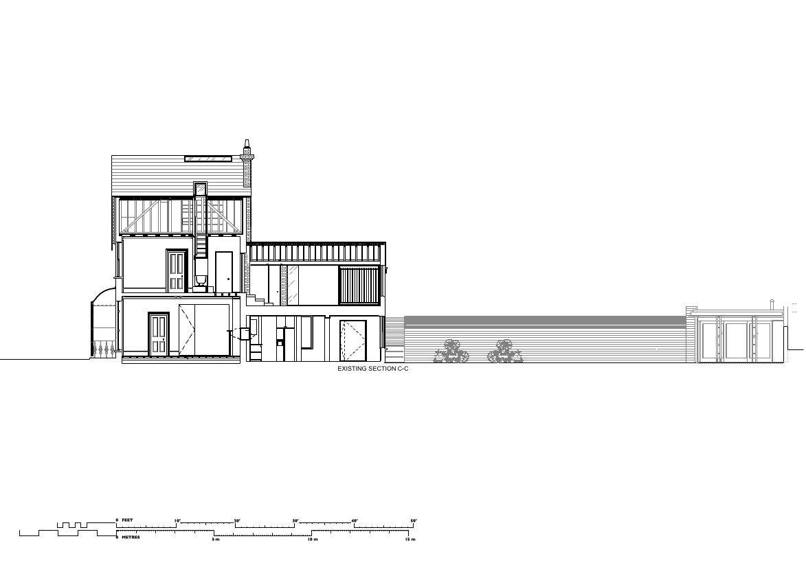
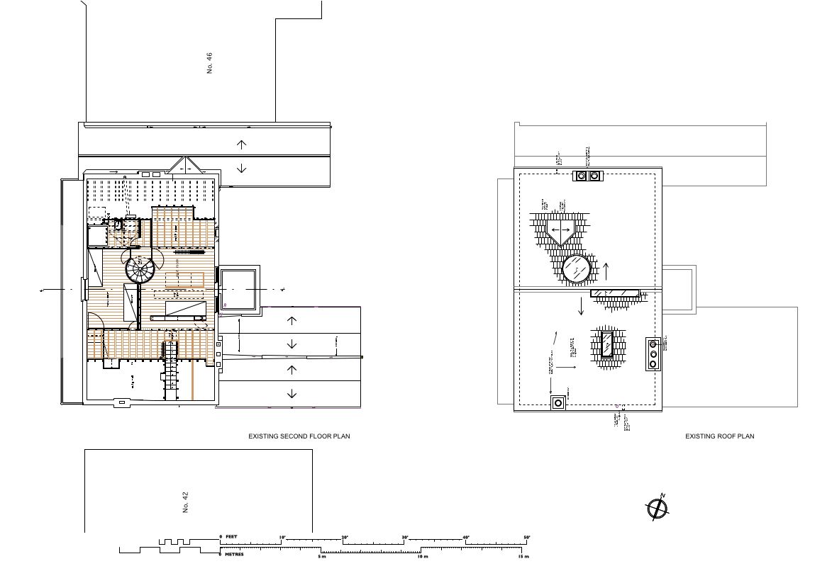
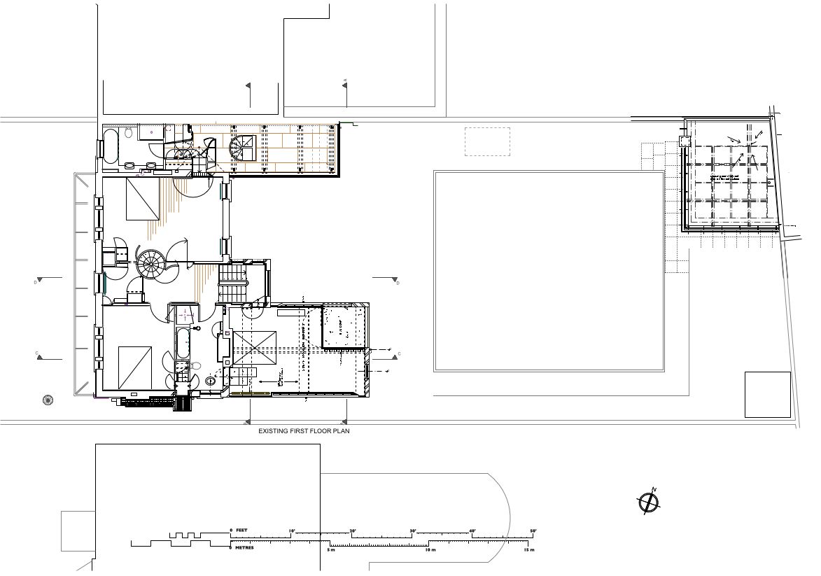
This refurbishment saw the radical architectural reworking of a three-storey 1894 house. The project included the insertion of major new spatial geometries with circular and D-shape staircases, specially shaped cupboards, an unusual cellar and the opening up the ground floor to the garden and to the light. Three new staircases were inserted, the first floor is now connected to the to the attic by a helical and a straight staircase, and a D-shaped staircase connects the ground floor to a new study. This study is a new first floor room, designed in timber and glass, which looks down onto to the garden.