garden pavilion
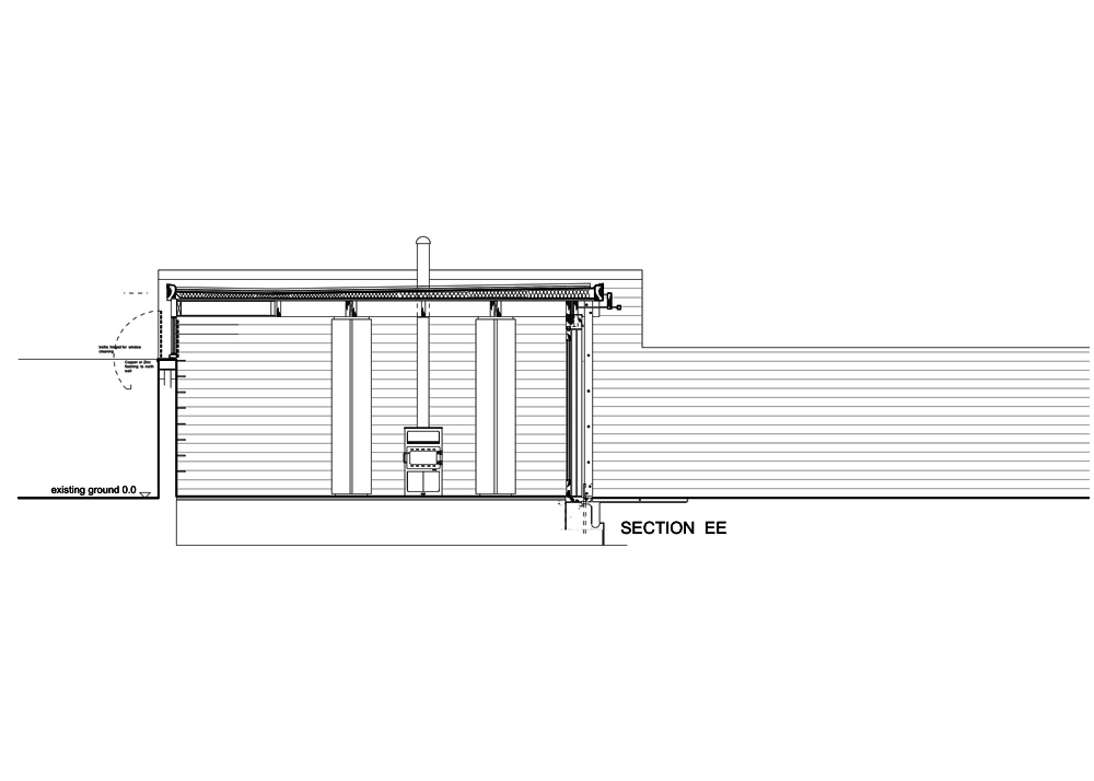
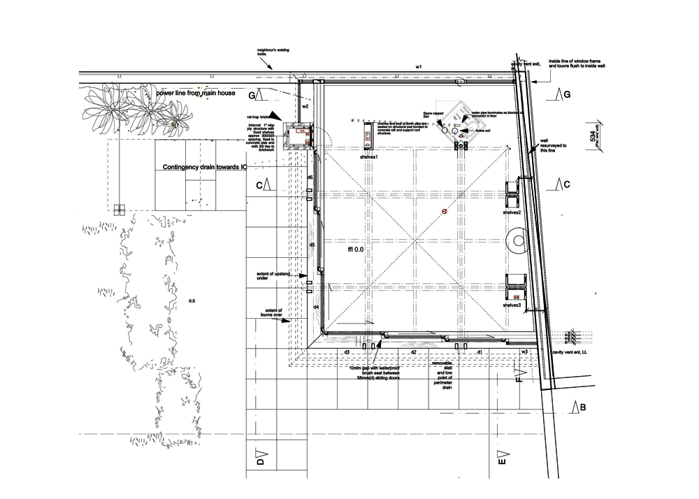
Like a gazebo this garden pavilion detaches from parent house and sets its design about the main corner diagonal
which faces near due south across the garden. Six windows fully roll back and away from the cantilever entrance corner.
The floor is set level with garden. Materials are Douglas fir structural roof and frames, rattrap brick walls, concrete floor.
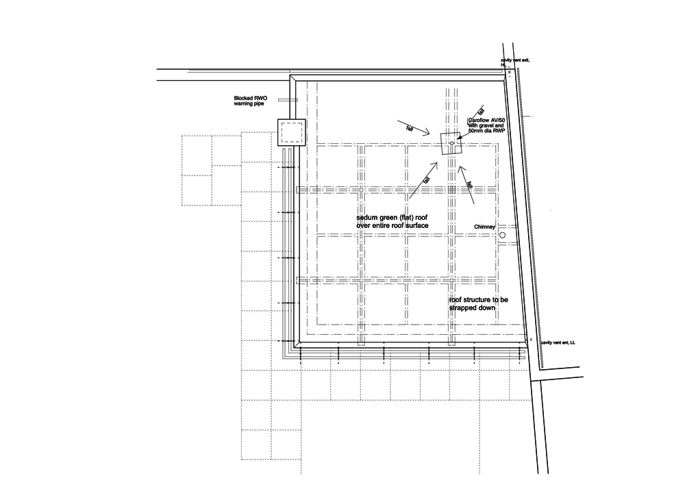
Roof is sedum vegetation.
Contractor Eddie Kelly
Joinery Lignum
Garden Pavilion has won a 2009 RIBA regional award.
Contractor Eddie Kelly
Joinery Lignum
Garden Pavilion has won a 2009 RIBA regional award.