ANDREW PILKINGTON ARCHITECTS & DESIGNERS
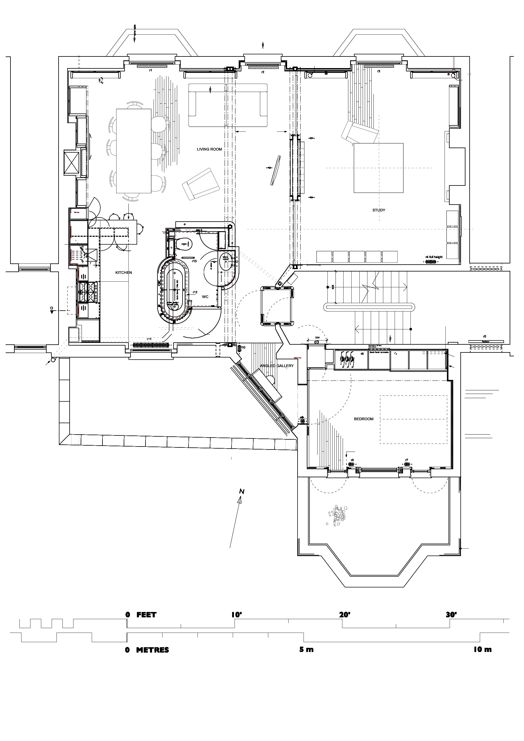
Space opened out on first floor flat. bedroom to rear with terrace. free standing bathroom pod. minimal heating requirements, due to thermal and acoustic insulation throughout. We added a galleried walk to find the secret bedroom, then gave this a 'Venetian' type sashed triple window onto its own terrace. The main interior of the flat received two mighty steels, exposed, so everything is exposed, you can walk around spaces that flow around the islanded bathroom. With thermal and acoustic insulation to all outside walls it turns out that the flat has virtually no heating requirement other than to its hot water for washing.